Array ( [cat_id] => 43 [cat_name] => 智能配电设备 [unique_id] => zhinengpeidianshebei [parent_id] => 0 [url] => http://www./product/zhinengpeidianshebei ) 箱式变电站(组合式)-GA黄金甲官方网站
电能质量治理 电力能源管理 智能配电设备 机电传动自控 智慧数字电力 品牌战略授权
箱式变电站(组合式)

产品概述

ZBW-12系列箱式变电站,简称箱变,是一种把高压开关设备、配电变压器、低压开关设备、电能计量设备和无功补偿装置等按一定的接线方案,组合在一个或几个箱体内的紧凑型成套配电装置,它适用于额定电压10/0.4KV三相交流电力系统中,作为线路和分配电能之用,特别适用于城网建设与改造,是继土建变电站之后崛起的一种崭新的变电站。箱式变电站适用于矿山、工厂企业、油气田和风力发电站等场景,替代了原有的土建配电房或者配电站,成为新型的成套变配电装置。

性能特点

远程遥控:可实现"四遥",即遥测、遥信、遥控、遥调,每个单元均具有独立运行的功能,继电保护功能齐全,可对运行参数进行远方设置;

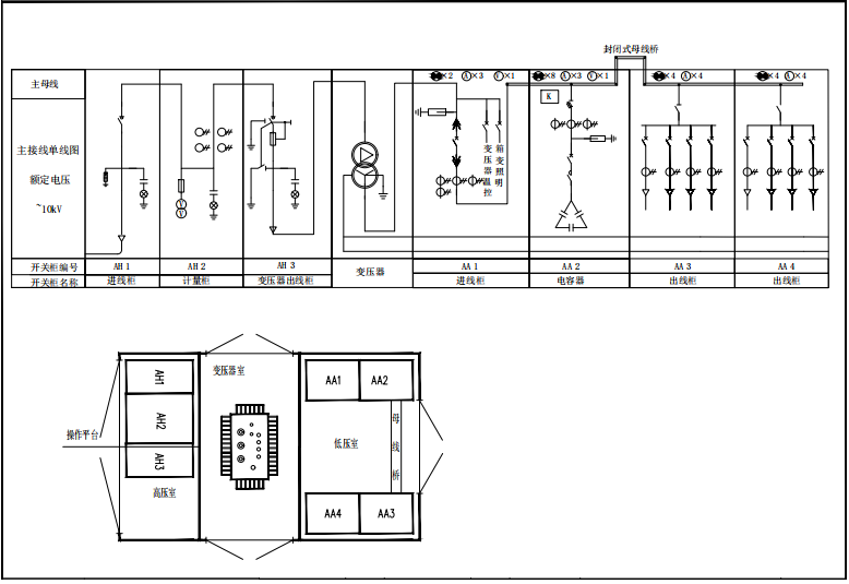
远程监测:全站可实现智能化运行,保护单元采用微机综合自动化系统,分散安装,可实现无人值守,安全性高;

防腐性能:箱体采用国内领先技术及工艺,冷轧钢板进行防腐处理,框架采用标准集装箱材料及制作工艺,有良好的防腐性能,不易锈蚀;

稳定可靠:内部安装空调以及除湿装置,设备运行不受自然气候环境及外界污染影响,可保证在-40℃~+40℃的恶劣环境下正常运行;

绝缘性能:采用单元真空开关柜、干式变压器、干式互感器、真空断路器等国内技术领先设备,产品无裸露带电部分,为绝缘结构,完全能达到零触电事故;

结构紧凑:较之土建配电室,箱变结构紧凑简单,占地面积小的同时,易于移动运输以及搬运安装,投资省、见效快,性价比高;

单元模块:独立系统设计理念,以功能单元的方式进行组合,方式灵活多变,真正实现变电所建设工厂化,缩短了设计制造周期;

施工安装:现场安装仅需箱体定位、箱体间电缆联络、出线电缆连接、保护定值校验、传动试验及其它需调试的工作,大大缩短了建设工期;

维护方便:结构设计便于维护和检修,减少维护时间和成本,易于访问的组件和模块化设计简化了更换和修理过程;

方案原理

设计依据

GB17467-2010《高压/低压预装式变电站》的标准

DL/T 537-2002  高压/低压预装箱式变电站选用导则

GB 1094.1~5-1996 电力变压器

GB 11022-1999 高压开关设备和控制设备标准的共用技术要求

技术参数

名称

单位

高压电器设备

变压器

低压电器设备

额定电压

KV

12

12/0.4

0.4

额定电流

A

630

 

 

变压器容量

kVA

 

1250

 

额定频率

Hz

50

额定热稳定电流

kA

20/4S

 

30/1S

额定稳定电流(峰值)

kA

50

 

63

额定关合短路电流(峰值)

kA

50

 

15-30

额定开断短路电流

kA

315(熔断器)

 

 

额定开断负荷电流

A

630

 

 

1min工频耐受电压

KV

对地、相间42断口间48

35/28(min)

20/25

蓄电冲击耐受电压

KV

对地、相间75断口间85

75

 

壳体防护等级

 

IP23

IP23

IP23

噪音水平

dB

 

油变≤55、干变≤65

 

回路数

1-6

2

4-30

低压侧最大无功补偿

kvar

 

 

300

应用环境

本产品工作场所海拔不超过2000米,环境温度-25℃~+40℃,相对湿度:日平均不大于95%,月平均不大于90%。

本产品运行场所应具备无有害气体、可燃气体、蒸汽等污染,无导电性或者爆炸性尘埃,运行场所应无经常性的剧烈机械振动。

本产品避免长期在潮湿环境中放置,如受潮或者凝露,为避免短路,切忌第一时间通电试验,需在专业工程师指导下采取正确方法措施后进行故障排除。

上述为正常使用环境条件,如果实际使用环境不同于上述正常环境条件,由用户与制造厂协商解决。


型号含义

外观结构

选型参考

 

名称

箱变

围栏

800KVA

4.6*2.3米

2*0.8米

630KVA

4.6*2.3米

2*0.8米

500KVA

4.4*2.3米

2*0.8米

400KVA

4.4*2.3米

2*0.8米

315KVA

3.8*1.8米

2*0.8米

250KVA

3.8*1.8米

2*0.8米

200KVA

3.8*1.8米

2*0.8米

订货须知

电力系统图;

辅助电路电气原理图;

组合顺序图;

平面布置图;

计量单元;

外壳材质;

外观颜色;

使用环境(户外)

落地安装;

负载性质;

特殊要求注明;

©2024 版权所有 GA黄金甲官方网站